О проекте

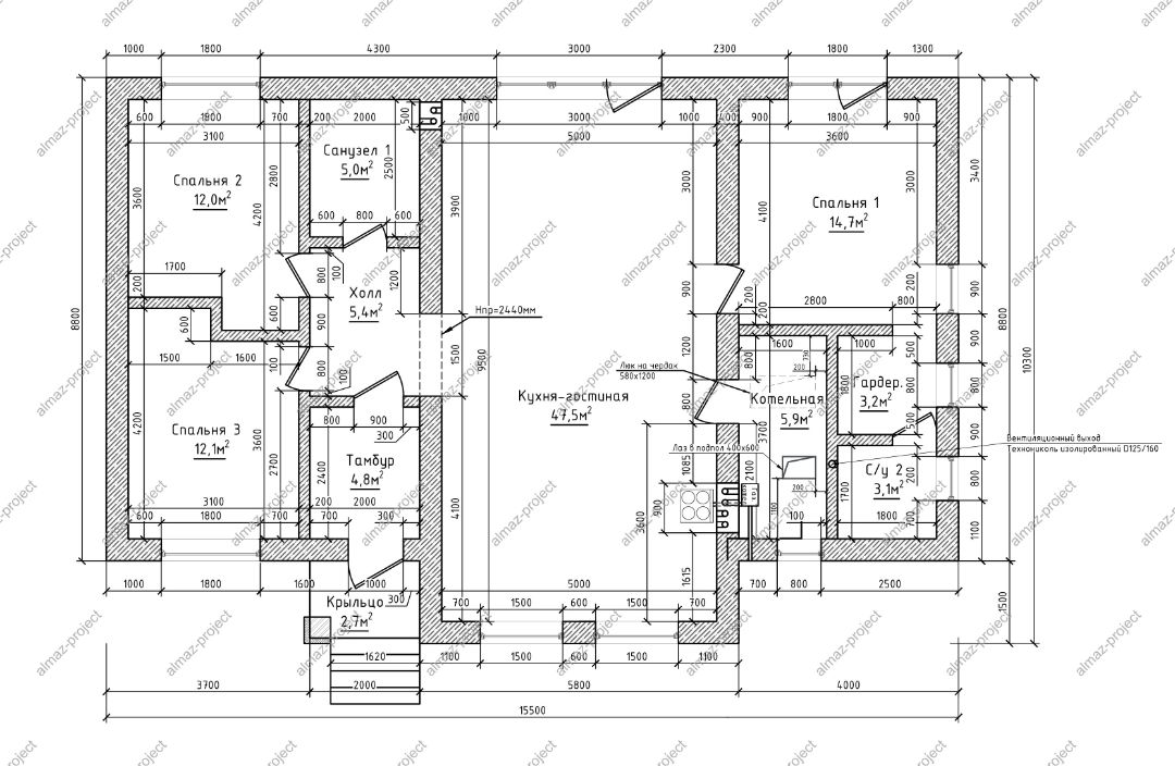
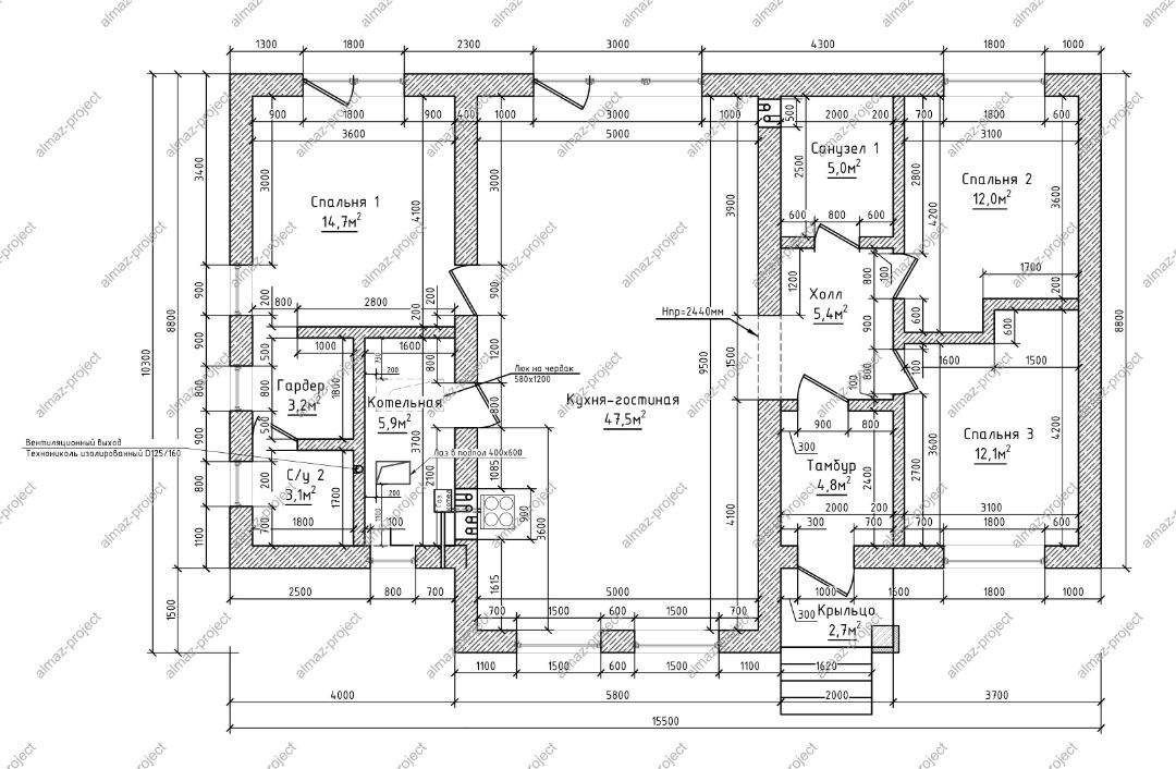
А-122ГБ 2ВС — уникальный проект одноэтажного дома из газобетона площадью 122 кв м, который не оставит никого равнодушным. Просторная кухня-гостиная расположена посередине дома и имеет панорамные окна с обеих сторон дома (с возможностью выхода на террасу на задний двор). Визуально эстетичный, стильный и современный, а в дополнение к этому проект выглядит очень благородно. Идеально отвечает сегодняшним тенденциям

Две спальни + мастер-спальня

Два санузла

Котельная

Второй свет с двух сторон дома

Внешние размеры дома: 15,5 * 10,3 м

Высота прямого потолка (от уровня чистового покрытия пола до перекрытия крыши): 2 690 мм

Высота в зоне второго света (от уровня чистового пола): 3 976 мм

Планировка

Крыльцо слева

Крыльцо справа

Фасады

Что входит в проект

Проект состоит из архитектурной части (АР) и конструктива (КР). Инженерных сетей в проекте нет.

Также к проекту прилагается укрупненная спецификация по количеству и объему материалов.

подробнее в видео >>>

С более подробной технической информацией можно ознакомиться в Анонсе проекта (урезанной версии полного проекта)

Объект проектирования располагается в Ивановской области (климатический район строительства-II-В). При строительстве в регионах, имеющих другие климатические районы, необходимо самостоятельно уточнить пирог утепления теплого контура в соответствии с местными климатическими условиями.

Материалы, используемые в проекте из газобетона:

  • Фундамент: свайно-ростверковый (сваи показаны условно, необходимо проработать с учетом геологии в пятне застройки)
  • Наружные и внутренние несущие стены: стеновой газобетонный блок 600х200х400 мм плотностью D400
  • Отделка фасада: декоративная облицовочная штукатурка Ceresit
  • Покрытие кровли: мягкая кровля Технониколь / металлочерепица

Стоимость проекта: 40 000 (сорок тысяч) руб.

Внесение изменений в типовой проект:

  • Расположение (смещение вправо / влево) и конфигурация окон (высота окна, подоконника) - 7 000 руб.
  • Перемещение до 50% перегородок - 7 000 руб.
  • Изменение высоты потолков - 7 000 руб.
  • Проектирование навеса / террасы, пристроенного к дому - 20 000 руб.
  • Замена отделки фасада на Hauberk - 7 000 руб.
  • Адаптация свайно-ростверкового фундамента под ваш участок - 29 000 руб.
  • Адаптация другого типа фундамента (ленточный, плита, ФБС) под ваш участок - 35 000 руб.

** любое изменение расположения несущих стен - является разработкой нового проекта
** адаптирование проекта под облицовочный кирпич - является разработкой нового проекта

АКЦИЯ

При одновременной покупке от 3 проектов и более - скидка на каждый проект 5 000 руб.

Необходимо зарегистрироваться на странице каждого проекта. Оплата производится за все проекты одним платежом.

выбрать проекты >>>

РЕГИСТРАЦИЯ

Для покупки проекта необходимо заполнить форму ниже. 

Данные в полях должны совпадать с данными плательщика

CRM-форма появится здесь

Оплатить проект можно по QR-коду, который придет на электронную почту, указанную вами в форме регистрации.

После оплаты вам нужно отправить чек ответом на пришедшее письмо или в Мах / Telegram по номеру +79303444050.

После подтверждения поступления денежных средств вам на почту придет электронный чек. Проект в электронном виде (формат .pdf) отправим в течение 3 рабочих дней.

Cookie-файлы
Настройка cookie-файлов
Детальная информация о целях обработки данных и поставщиках, которые мы используем на наших сайтах
Аналитические Cookie-файлы Отключить все
Технические Cookie-файлы
Другие Cookie-файлы
Мы используем файлы Cookie для улучшения работы, персонализации и повышения удобства пользования нашим сайтом. Продолжая посещать сайт, вы соглашаетесь на использование нами файлов Cookie. Подробнее о нашей политике в отношении Cookie.
Понятно Подробнее
Cookies