О проекте

А-91ГБ - проект одноэтажного дома из газобетона площадью 91 кв м, включает три просторные комнаты, в одной из которых есть удобная гардеробная, функциональную котельную и просторный санузел. Такой дом сочетает комфортную планировку и практичные решения для уютной семейной жизни

Две спальни + мастер-спальня

Один санузел

Котельная

Внешние размеры дома: 11,7 * 9,8 м

Потолок прямой, высота (от уровня чистового покрытия пола до перекрытия крыши): 2 690 мм

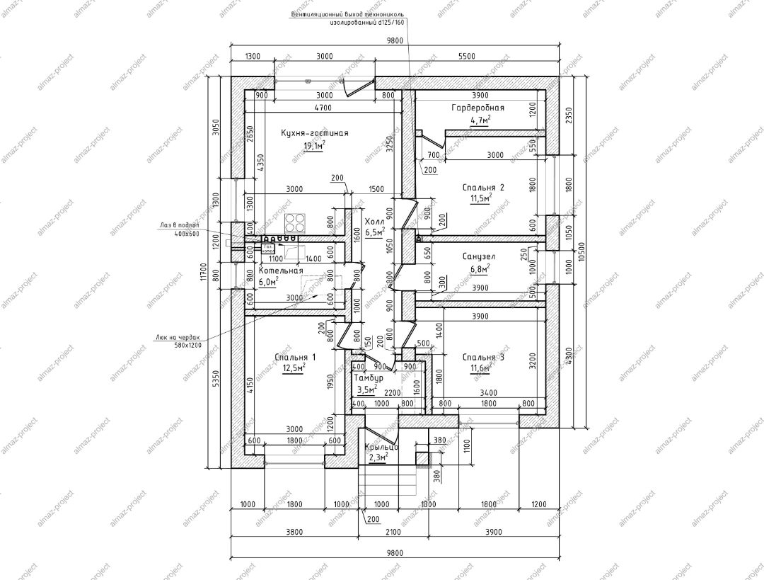
Планировка

Кухня-гостиная слева

Кухня-гостиная справа

Фасады

Видеообзор дома по проекту А-91ГБ

Примеры построенных домов

Что входит в проект

Проект состоит из архитектурной части (АР) и конструктива (КР). Инженерных сетей в проекте нет.

Также к проекту прилагается укрупненная спецификация по количеству и объему материалов.

подробнее в видео >>>

Объект проектирования располагается в Ивановской области (климатический район строительства-II-В). При строительстве в регионах, имеющих другие климатические районы, необходимо самостоятельно уточнить пирог утепления теплого контура в соответствии с местными климатическими условиями.

Материалы, используемые в проекте из газобетона:

  • Фундамент: свайно-ростверковый (сваи показаны условно, необходимо проработать с учетом геологии в пятне застройки)
  • Наружные и внутренние несущие стены: стеновой газобетонный блок 600х200х400 мм плотностью D400
  • Отделка фасада: декоративная облицовочная штукатурка Ceresit
  • Покрытие кровли: мягкая кровля Технониколь / металлочерепица

Стоимость проекта: 35 000 (тридцать пять тысяч) руб.

Внесение изменений в типовой проект:

  • Расположение (смещение вправо / влево) и конфигурация окон (высота окна, подоконника) - 5 000 руб.
  • Перемещение до 50% перегородок - 5 000 руб.
  • Изменение высоты потолков - 5 000 руб.
  • Проектирование навеса / террасы, пристроенного к дому - 15 000 руб.
  • Адаптация свайно-ростверкового фундамента под ваш участок - 25 000 руб.
  • Адаптация другого типа фундамента (ленточный, плита, ФБС) под ваш участок - 30 000 руб.

** любое изменение расположения несущих стен - является разработкой нового проекта
** адаптирование проекта под облицовочный кирпич - является разработкой нового проекта

АКЦИЯ

При одновременной покупке от 3 проектов и более - скидка на каждый проект 5 000 руб.

Необходимо зарегистрироваться на странице каждого проекта. Оплата производится за все проекты одним платежом.

выбрать проекты >>>

РЕГИСТРАЦИЯ

Данные в полях должны совпадать с данными плательщика

CRM-форма появится здесь

Оплатить проект можно по QR-коду, который придет на электронную почту, указанную вами в форме регистрации.

После оплаты вам нужно отправить чек ответом на пришедшее письмо или в WhatsApp / Telegram по номеру +79303444050.

После подтверждения поступления денежных средств вам на почту придет электронный чек. Проект в электронном виде (формат .pdf) отправим в течение 3 рабочих дней.

Cookie-файлы
Настройка cookie-файлов
Детальная информация о целях обработки данных и поставщиках, которые мы используем на наших сайтах
Аналитические Cookie-файлы Отключить все
Технические Cookie-файлы
Другие Cookie-файлы
Мы используем файлы Cookie для улучшения работы, персонализации и повышения удобства пользования нашим сайтом. Продолжая посещать сайт, вы соглашаетесь на использование нами файлов Cookie. Подробнее о нашей политике в отношении Cookie.
Понятно Подробнее
Cookies